







План дома — это не чертёж, а отражение привычек семьи. Мы создаём маршруты движения, свет и воздух в нужных местах, чтобы жизнь текла естественно. Каждая линия на плане — шаг к тому, чтобы утро начиналось в тишине, а вечер заканчивался у панорамных окон.



Через 15 минут с вами свяжется наш менеджер и ответит на все вопросы!
В проект можно внести любую корректировку или создать индивидуальный проект
2 этажа
S теплого контура — 416,21 м2
S крылец террас балконов патио — 115,20 м2
S крылец навеса — 120,00 м2
общая площадь (теплый контур + КТБПН) — 651,41 м2
S теплого контура — 247,81 м2
S крылец террас балконов патио — 16,80 м2
общая площадь (теплый контур + КТБП) — 264,61 м2
S теплого контура — 664,02 м2
S крылец террас балконов патио — 132,00 м2
S навеса — 120,00 м2
общая площадь (теплый контур + КТБПН) — 916,02 м2
Нет
Монолит, газобетон, (возможно: теплая керамика, кирпич)
Индивидуальный проект дома
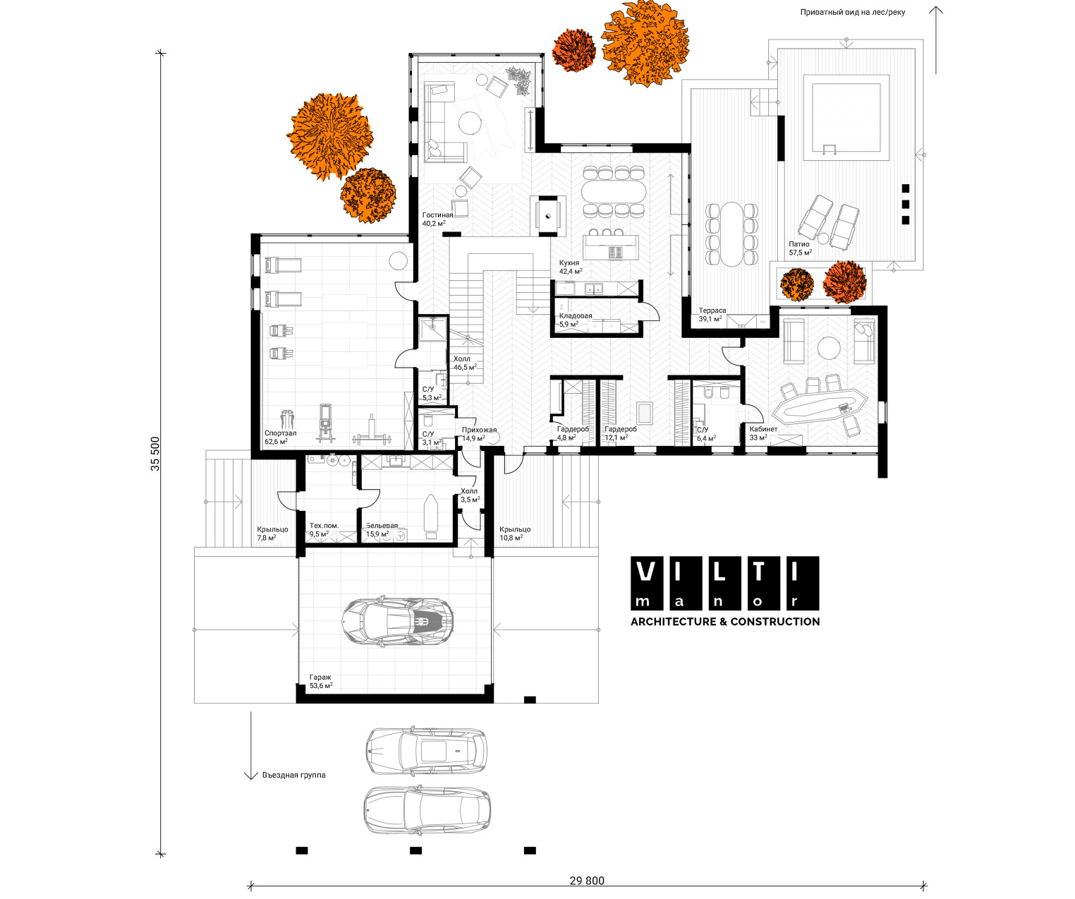
Второй свет Просторная гостиная 40 м2 Большая терраса 39 м2
Патио 57 м2 Гостиная 40 м2
Спортзал Бельевая
Система «умный дом» с интеграцией световых сценариев климат-контроля

Окончательная цена зависит от планировки
и объёма работ. Для точного расчета
свяжитесь с нашим менеджером.
Архитектура, идеально вписанная в окружающую среду и природный ландшафт, новое переосмысление классических античных образов — вот основные принципы американского неоклассицизма, ставшего основополагающим стилем коттеджного поселка Агаларов Эстейт.
Архитектура, идеально вписанная в окружающую среду и природный ландшафт, новое переосмысление классических античных образов — вот основные принципы американского неоклассицизма

Первая встреча носит ознакомительный характер
Обсудим концепцию и планировку, покажем этапы, сроки и бюджет
Через 15 минут с вами свяжется наш менеджер и ответит на все вопросы!
Мы подготовим индивидуальное предложение и пригласим на консультацию с архитектором и дизайнером. Обсудим концепцию и планировку, покажем этапы, сроки и бюджет.