








План дома — это не чертёж, а отражение привычек семьи. Мы создаём маршруты движения, свет и воздух в нужных местах, чтобы жизнь текла естественно. Каждая линия на плане — шаг к тому, чтобы утро начиналось в тишине, а вечер заканчивался у панорамных окон.



Через 15 минут с вами свяжется наш менеджер и ответит на все вопросы!
В проект можно внести любую корректировку или создать индивидуальный проект
2 этажа
S теплого контура — 435,00 м2
S крылец террас балконов патио — 85,00 м2
S крылец навеса — 67,47 м2
общая площадь (теплый контур + КТБПН) — 587,47 м2
S теплого контура — 308,00 м2
S крылец террас балконов патио — 125,50 м2
общая площадь (теплый контур + КТБП) — 433,50 м2
S теплого контура — 743,00 м2
S крылец террас балконов патио — 210,50 м2
S крылец навеса — 67,47 м2
общая площадь (теплый контур + КТБПН) — 1 020,97 м2
Есть
Монолит, газобетон, (возможно: теплая керамика, кирпич)
Индивидуальный проект дома
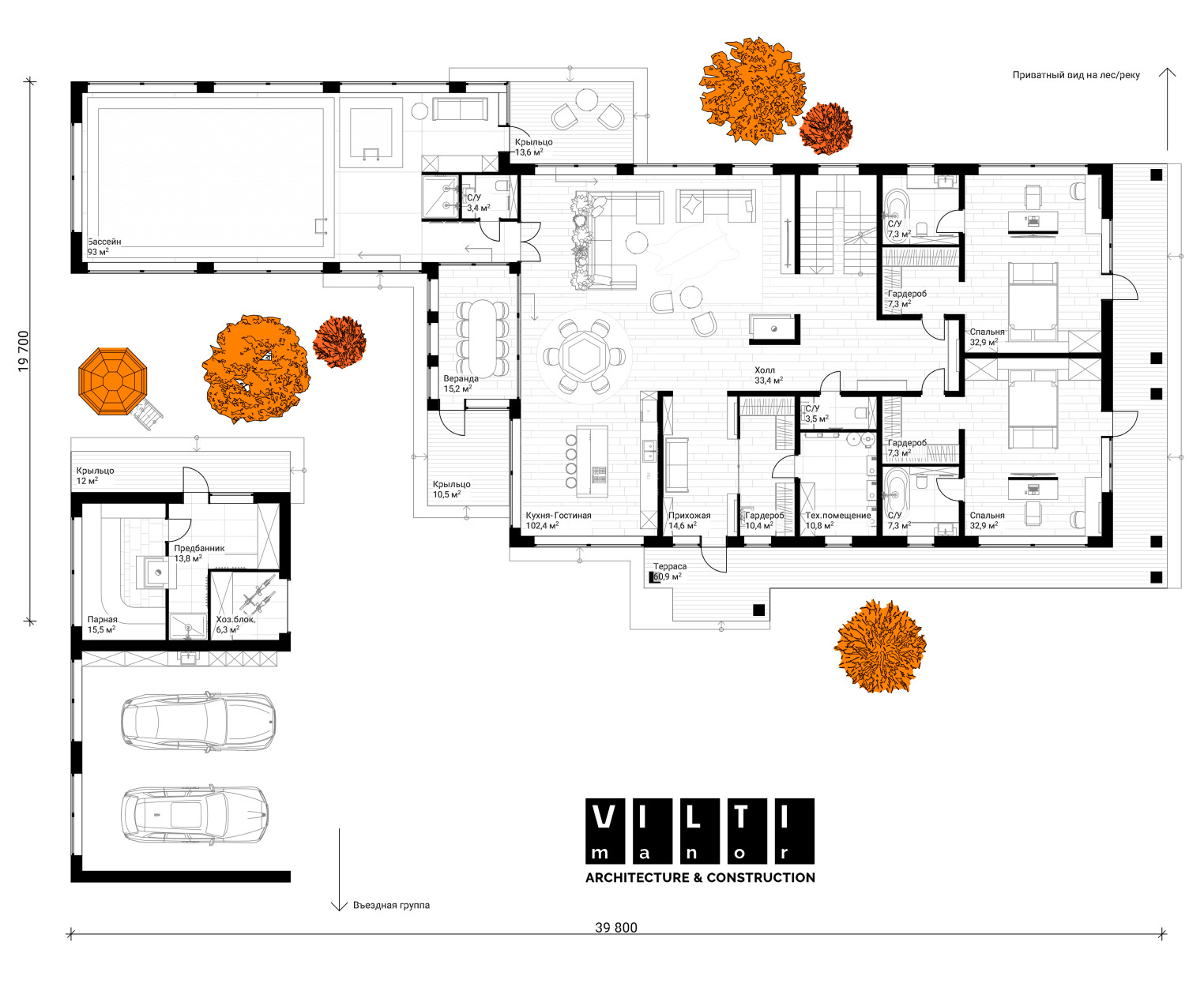
Просторная кухня-гостиная 102 м2
Бассейн 93 м2 Кухня-гостиная 102 м2 Сауна 30 м2 Балкон 63 м2 Холл 7.3
Хоз.Блок Бельевая
Система «умный дом» с интеграцией световых сценариев климат-контроля

Окончательная цена зависит от планировки
и объёма работ. Для точного расчета
свяжитесь с нашим менеджером.
Архитектура, идеально вписанная в окружающую среду и природный ландшафт, новое переосмысление классических античных образов — вот основные принципы американского неоклассицизма, ставшего основополагающим стилем коттеджного поселка Агаларов Эстейт.
Архитектура, идеально вписанная в окружающую среду и природный ландшафт, новое переосмысление классических античных образов — вот основные принципы американского неоклассицизма

Первая встреча носит ознакомительный характер
Обсудим концепцию и планировку, покажем этапы, сроки и бюджет
Через 15 минут с вами свяжется наш менеджер и ответит на все вопросы!
Мы подготовим индивидуальное предложение и пригласим на консультацию с архитектором и дизайнером. Обсудим концепцию и планировку, покажем этапы, сроки и бюджет.