







План дома — это не чертёж, а отражение привычек семьи. Мы создаём маршруты движения, свет и воздух в нужных местах, чтобы жизнь текла естественно. Каждая линия на плане — шаг к тому, чтобы утро начиналось в тишине, а вечер заканчивался у панорамных окон.



Через 15 минут с вами свяжется наш менеджер и ответит на все вопросы!
В проект можно внести любую корректировку или создать индивидуальный проект
2
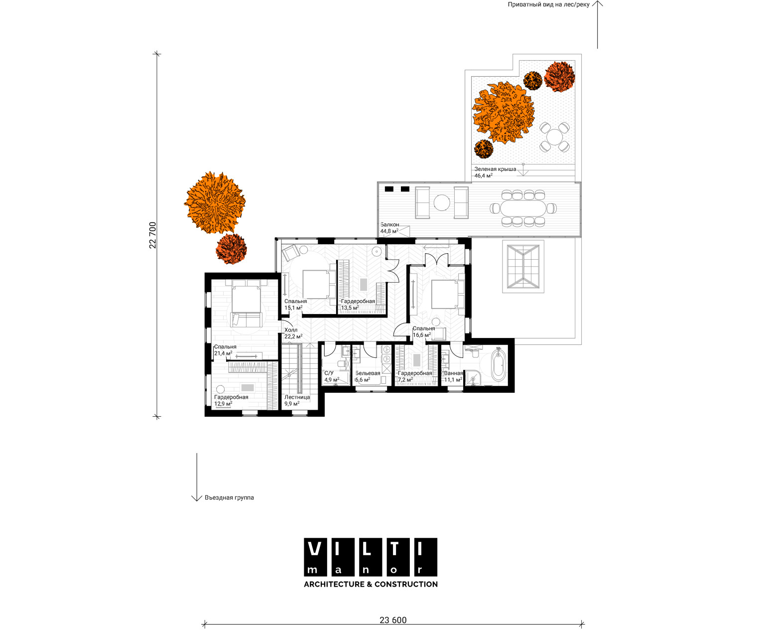
S теплого контура — 351,20 м2
S крылец террас балконов патио — 110,70 м2
S навеса — 100,00 м2
общая площадь (теплый контур + КТБПН) — 561,90 м2
S теплого контура — 172,74 м2
S крылец террас балконов патио — 91,20 м2
общая площадь (теплый контур + КТБП) — 263,94 м2
S теплого контура — 523,94 м2
S крылец террас балконов патио — 201,90 м2
S навеса — 100,00 м2
общая площадь (теплый контур + КТБПН) — 725,84 м2
Монолит, газобетон, (возможно: теплая керамика, кирпич)
Индивидуальный проект дома

Окончательная цена зависит от планировки
и объёма работ. Для точного расчета
свяжитесь с нашим менеджером.
Архитектура, идеально вписанная в окружающую среду и природный ландшафт, новое переосмысление классических античных образов — вот основные принципы американского неоклассицизма, ставшего основополагающим стилем коттеджного поселка Агаларов Эстейт.
Архитектура, идеально вписанная в окружающую среду и природный ландшафт, новое переосмысление классических античных образов — вот основные принципы американского неоклассицизма
Первая встреча носит ознакомительный характер
Обсудим концепцию и планировку, покажем этапы, сроки и бюджет
Через 15 минут с вами свяжется наш менеджер и ответит на все вопросы!
Мы подготовим индивидуальное предложение и пригласим на консультацию с архитектором и дизайнером. Обсудим концепцию и планировку, покажем этапы, сроки и бюджет.