







План дома — это не чертёж, а отражение привычек семьи. Мы создаём маршруты движения, свет и воздух в нужных местах, чтобы жизнь текла естественно. Каждая линия на плане — шаг к тому, чтобы утро начиналось в тишине, а вечер заканчивался у панорамных окон.



Через 15 минут с вами свяжется наш менеджер и ответит на все вопросы!
В проект можно внести любую корректировку или создать индивидуальный проект
2 этажа
S теплого контура — 607,21 м2
S крылец террас балконов патио — 212,50 м2
S навеса — 145,00 м2
общая площадь (теплый контур + КТБПН) — 964,71 м2
S теплого контура — 368,59 м2
S крылец террас балконов патио — 80,90 м2
общая площадь (теплый контур + КТБП) — 449,49 м2
S теплого контура — 290,20 м2
S крылец — 4,00 м2
общая площадь (теплый контур + КТБП) — 294,20 м2
S теплого контура — 1 266,00 м2
S крылец террас балконов патио — 297,40 м2
S навеса — 145,00 м2
общая площадь (теплый контур + КТБПН) — 1 708,40 м2
Есть
Монолит, газобетон, (возможно: теплая керамика, кирпич)
Индивидуальный проект дома
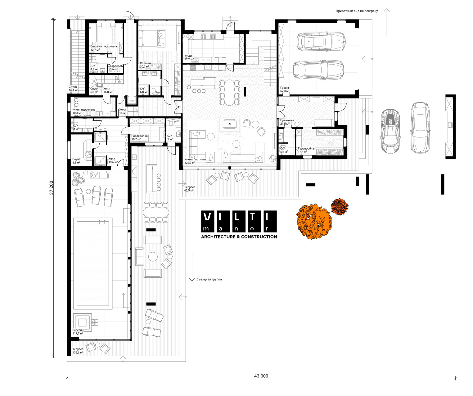
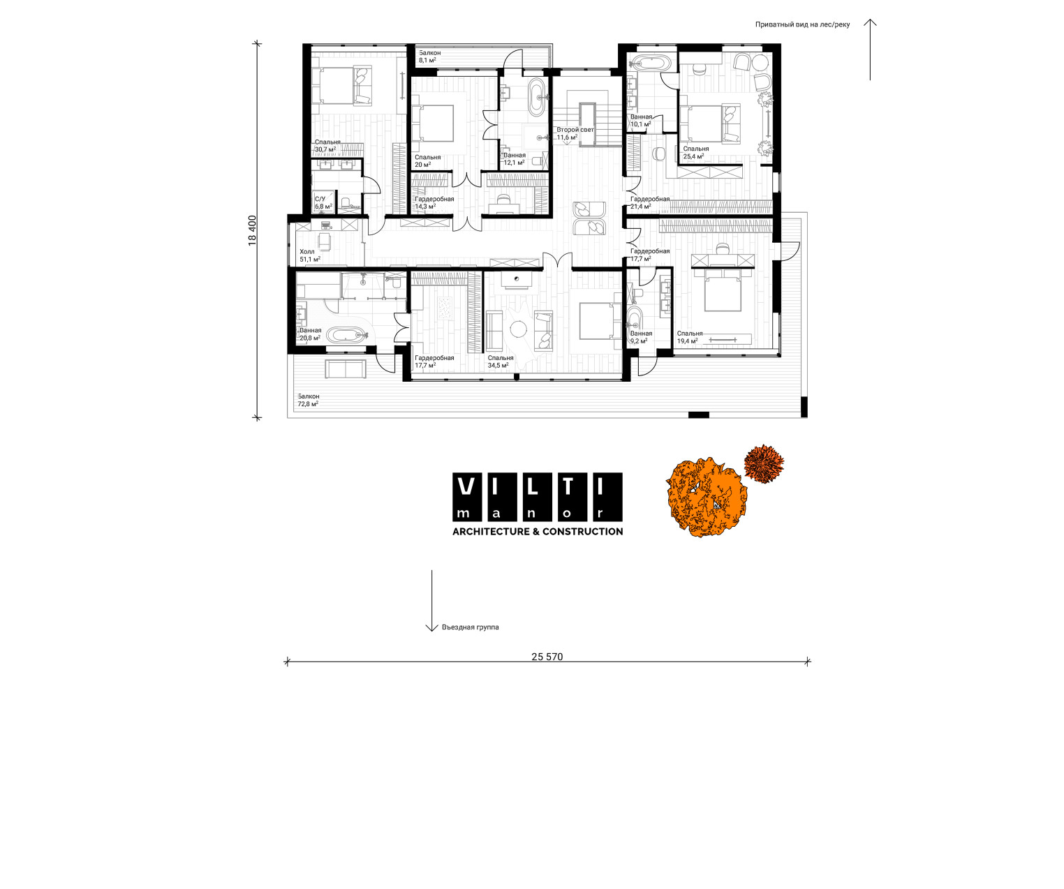
Второй свет Просторная гостиная 129 м2 Большая терраса 197 м2
Бассейн 118 м2 Кухня-гостиная 129 м2 Сауна 8 м2 Терраса 197 м2
Комната персонала
Система «умный дом» с интеграцией световых сценариев климат-контроля

Окончательная цена зависит от планировки
и объёма работ. Для точного расчета
свяжитесь с нашим менеджером.
Архитектура, идеально вписанная в окружающую среду и природный ландшафт, новое переосмысление классических античных образов — вот основные принципы американского неоклассицизма, ставшего основополагающим стилем коттеджного поселка Агаларов Эстейт.
Архитектура, идеально вписанная в окружающую среду и природный ландшафт, новое переосмысление классических античных образов — вот основные принципы американского неоклассицизма

Первая встреча носит ознакомительный характер
Обсудим концепцию и планировку, покажем этапы, сроки и бюджет
Через 15 минут с вами свяжется наш менеджер и ответит на все вопросы!
Мы подготовим индивидуальное предложение и пригласим на консультацию с архитектором и дизайнером. Обсудим концепцию и планировку, покажем этапы, сроки и бюджет.